Jahreshauptversammlung 2015

Andreas Dehning 19.02.2015

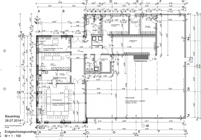
Aktueller Stand zum Feuerwehrhausneubau

In all den vergangenen Jahren war der Neubau immer wieder Thema auf den Jahreshauptversammlungen. Jetzt werden die Planungen konkreter. Die Zeichnungen sind fertig und der Bauantrag ist gestellt.

Das Bauamt erstellt zurzeit die umfangreichen Ausschreibungsunterlagen für die einzelnen Gewerke. Nach der Sichtung und der Kostenermittlung werden die Aufträge vergeben und mit dem Neubau kann in diesem Jahr noch begonnen werden. Durch die Anpassung des Feuerwehrhauses an das Ortsbild der Gemeinde hat sich die geplante Bausumme noch erhöht. Die erforderlichen Mehrkosten wurden auf der Ratssitzung im November des vergangenen Jahres genehmigt.

Wenn in diesem Jahr mit dem Bau begonnen wird beginnt für uns alle ein schwierige Zeit, denn wir haben uns zur Einbringung von Eigenleistungen verpflichtet.

phoca thumb l lageplan