Nach langwierigen Planungen und Gesprächen steht es nun fest, der Feuerwehrhaus Neubau startet in diesem Jahr. Noch in diesem Monat wird mit den Baumaßnahmen begonnen.
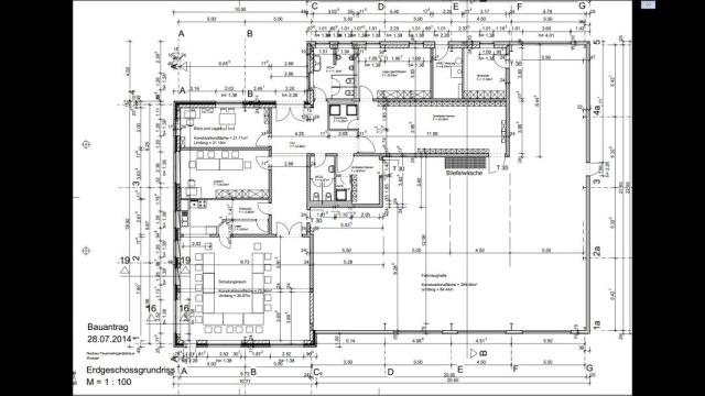
Wir möchten Ihnen den Neubau schon mal als Zeichnung präsentieren und Sie über den Baufortschritt informieren.
Der Neubau wird an gleicher Stelle entstehen, wo jetzt noch das alte Gerätehaus steht. Dazu wird das alte Feuerwehrhaus abgerissen. Die Ausräumarbeiten haben schon begonnen.
Warum ein Abriss, diese Frage werden sich viele stellen sah doch das „alte“ Feuerwehrhaus noch recht „Schmuck“ aus von außen. Auch die Sanierungs- und Umbau Variante wurde angedacht und kalkuliert, letztendlich aber wieder verworfen, da die Kosten in keinem Verhältnis zu dem zu erwartenden Nutzen mehr standen.
Das alte Feuerwehrhaus weist schwerwiegende Mängel und Rückstände im Bereich der Wärmedämmung, der Arbeitssicherheit und dem Platzangebot in vielerlei Hinsicht auf. Es entspricht auch nicht mehr den Normen die an Feuerwehrhäusern gestellt werden.
Nur um ein paar Beispiele zu nennen:
- Die Fahrzeughallen bieten für die Löschfahrzeuge der Wehr wenig Platz. Das erhöht die Unfallgefahr für die Einsatzkräfte wenn sie im Einsatzfall zu den Umkleidespinden eilen.
- Die Einsatzkräfte müssen sich neben den Fahrzeugen bei laufenden Motor umziehen. Die Abgase verunreinigen die Zivilkleidung (und nicht zuletzt auch die Einsatzkleidung) und sind Gesundheitsschädlich.
- Im strengen Wintern sind ab und an die Leitungen an der Nordseite eingefroren.
- Der Wärmeverlust innerhalb des Gebäudes ist sehr hoch. In den Fahrzeughallen muss eine Mindesttemperatur von 8 Grad eingehalten werden. Dazu musste die Halle eins auf 20 Grad erwärmt werden um in der Fahrzeughalle vier noch die vorgeschriebenen 8 Grad zu erreichen.
- Es gibt noch viele andere Sachstände die einer Weiterverwendung entgegen stehen, der Dachboden ist nicht ausbaufähig, das Dach ist kaum bis gar nicht gedämmt, Duschen, WC, keine Werkstatt usw. usw.
Warum wird wieder an gleicher Stelle gebaut und warum wird das Feuerwehrhaus nicht anderweitig verwendet? Jeder der dieses Gebäude übernimmt stünde vor den gleichen Problemen und Kosten wie die Samtgemeinde.
Die Lage ist für uns ideal, wir wollen nicht an den Ortsrand gedrängt werden. Es ist uns wichtig das wir „mitten“ drin im Ortsgeschehen sind und sie hautnah miterleben können das es uns gibt.
Die Gerätschaften und Fahrzeuge werden zur „Untermiete“ in einer Halle untergebracht. Der Brandschutz ist somit auch über die Bauzeit gesichert.
Zur besseren Darstellung, der Grundriss nochmal als PDF Datei:




